Retour à votre recherche
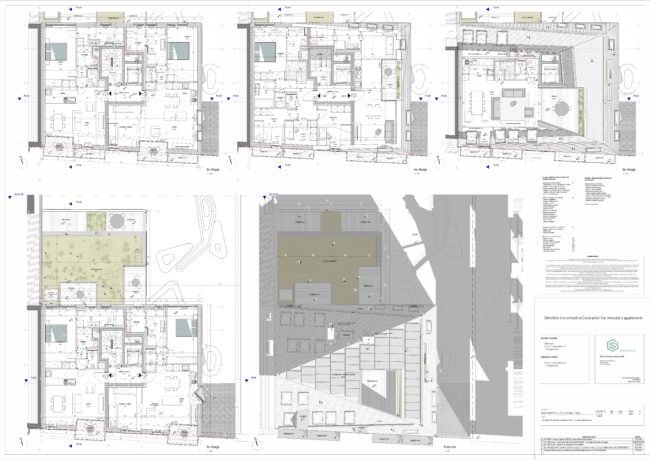
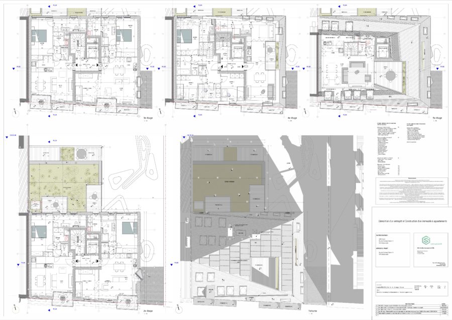
Anderlecht Q Vétérinaires – Habitat P à la carte, PEB A – Permis obtenu
KUBORN – l’habitat caméléon !
Prêt à habiter, libre à inventer !
L’habitat groupé sans devoir attendre.
10 foyers • Anderlecht (Quartier Vétérinaire) • Jardin Partagé • Oubliez la voiture. Ici, tout est à portée de main (ou de guidon)
Permis obtenu. Le démarrage n’attend que vous !
Ici, rien n’est imposé, tout est proposé.
=> consulter la brochure
contact => kuborn@gs3.archi
Signaler que cette annonce est inapproprié
Aidez-nous à améliorer le site d'habitat groupé, si cette annonce ou un des commentaires vous semble douteux signaler-le !Signaler cette annonce comme inapproprié
Vous devez être connecté pour pouvoir envoyer un message à l'auteur de l'annonce ou la commenter. Se connecter maintenant !