Retour à votre recherche

Maison à vendre au sein du cohabitat CasaNova

Le 22 avril 2026
0 commentaire

Après 7 joyeuses années, nous vendons notre maison qui fait partie du cohabitat CasaNova à schaerbeek.

Voici le site du cohabitat qui présente le projet : https://habitat.casanova.brussels Tout achat sera précédé de rencontres avec les cohabitants.

En termes d’espaces partagés, le cohabitat dispose d’une salle polyvalente, d’une grande cuisine, d’un bureau, d’un potager, d’un jardin et d’un espace vélos.

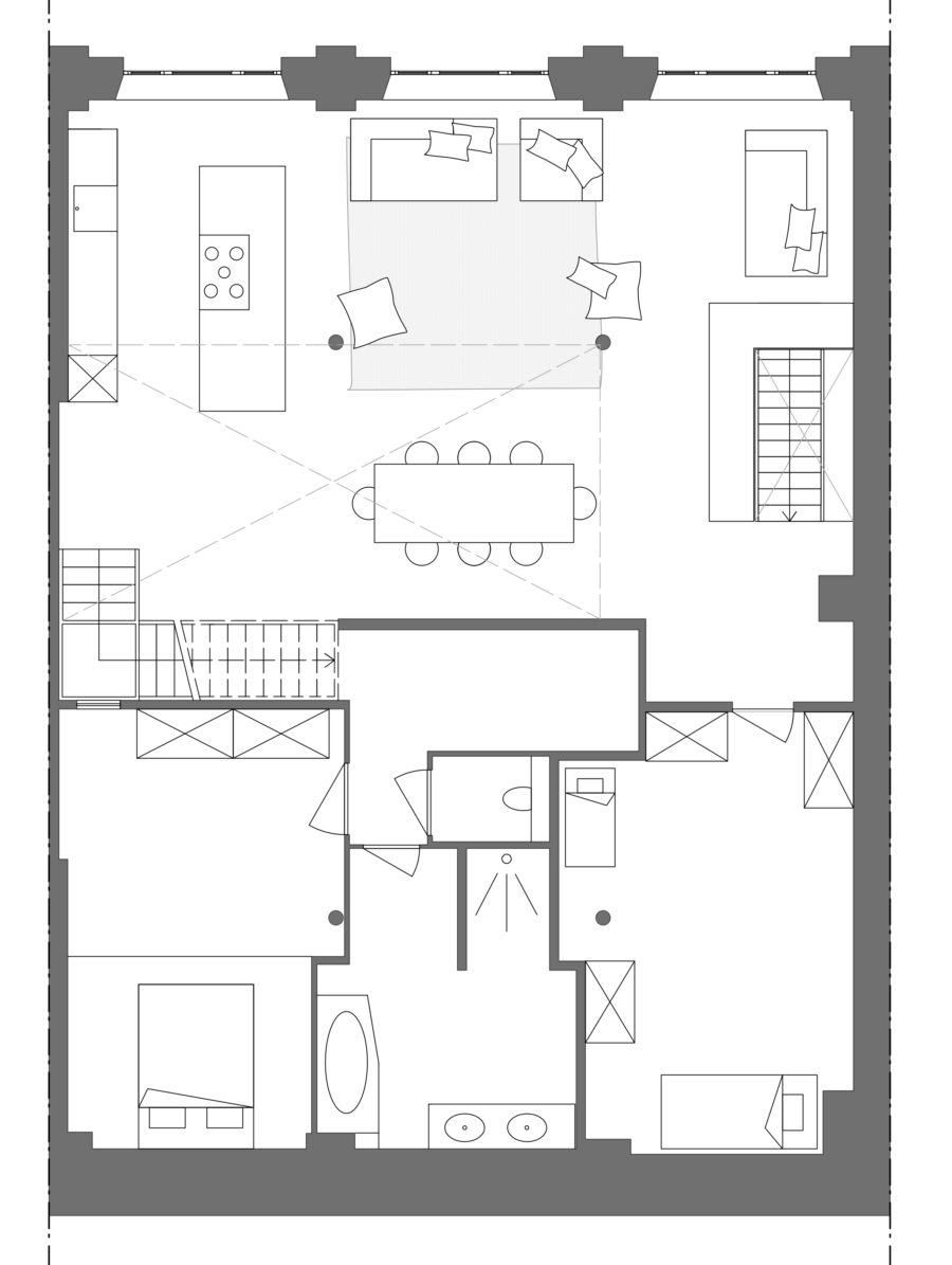
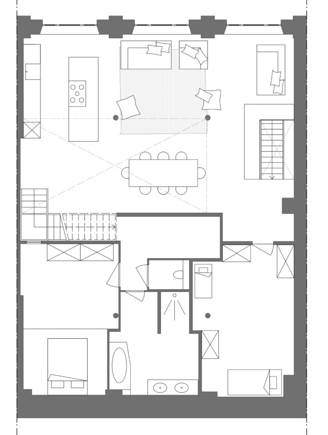
La maison est située dans un ancien théâtre du début XXème, elle dispose d’une surface de 306m2 (logements et espaces de travail) et un PEB D. Nous l’avions achetée Casco et fait les travaux il y a 7 ans.

Elle a été achetée en société, la société est à vendre 650 000 euros et doit encore rembourser 150 000 euros à la banque. L’achat en société permet de ne pas payer les frais de notaire et d’exercer une activité professionnelle dans le bâtiment. Mais il est aussi possible d’acheter la maison elle-même de manière classique si vous le préférez. Une place de parking couverte est inclue dans le prix.

 

Descriptif du lieu :

Une terrasse de 10m de long borde le jardin du cohabitat.

Au rdc : vous trouverez une salle de home-cinema (isolation acoustique très performante, idéal pour travailler dans le cinema / la musique ou pour les loisirs bruyants) et un studio d’habitation qui peut être indépendant (cuisine, toilettes, salle de douche etc..), idéal pour une location ou pour une famille nombreuse (personnes âgées, adolescent ayant besoin d’indépendance …)

Au premier : le salon principal, deux chambres, une salle de douche (+ baignoire) et des toilettes

Au second un espace ouvert, un filet pour s’y reposer et une dernière chambre plus petite ainsi qu’un espace de bureau

Une cheminée a été installée au cas ou vous voudriez installer un feu ouvert ou un poêle.

Si vous êtes intéressé.e.s vous pouvez nous envoyer un message à temp@eolotone.com

 

Merci et peut être à très bientôt !

Le 22 avril 2026
0 commentaire

Signaler que cette annonce est inapproprié

Aidez-nous à améliorer le site d'habitat groupé, si cette annonce ou un des commentaires vous semble douteux signaler-le !
Signaler cette annonce comme inapproprié
Retour à votre recherche