Retour à votre recherche

Rejoignez « La Montagne », un habitat groupé intergénérationnel à Schaerbeek

Le 16 décembre 2025
0 commentaire

Situé sur un site patrimonial comprenant 2 bâtiments,  notre habitat groupé rassemble déjà 8 ménages (recherche du 9ème). 
L’HG est en cours de rénovation (lauréat de RENOLAB.B.) et se définit comme un organisme écologique, circulaire, innovant et ouvert à son environnement. Il inclut des espaces communs conviviaux et durables :

Salle polyvalente : ±190 m²
Jardin partagé : ±200 m²
Toitures récréatives et végétalisées
Parking vélos, buanderies, et autres projets à définir. 

Le bien privatif est ancré dans une copropriété pour laquelle certains appels de fonds sont nécessaires pour clôturer la phase des travaux communs principaux.

 
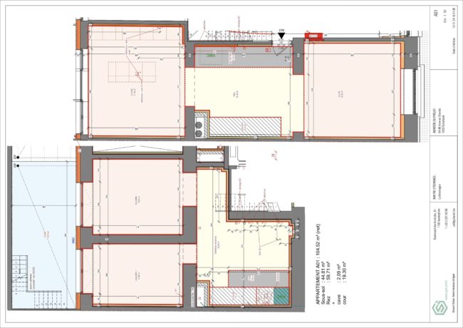
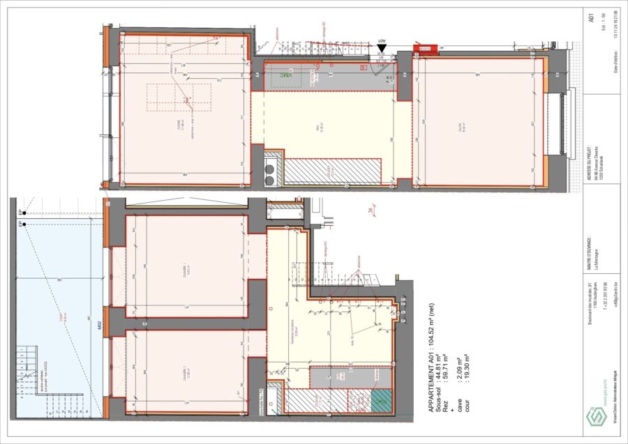
L’appartement est un souplex vendu casco HVAC (surface totale de ±104,5 m²).
NIVEAU 1 (rdc) : Salon, Salle à manger, Cuisine +/- 55,5m2 – WC séparé – Vestiaire
NIVEAU 2 (-1) : 2 chambres (+/- 12,5 et 16m2) / Sanitaire / Buanderie / Circulation +/- 16m2. Il y a une Cave +/- 2m2. Les chambres donnent sur une Cour anglaise +/- 19m2.
Caractéristiques écologiques/énergétiques: Double vitrage bois – Volet en façade avant – Isolation totale – Pompe à chaleur air/eau – Chauffage sol – Ventilation double flux – Récupération des eaux de pluies et des eaux usées.
DISPONIBILITÉ : à l’acte
PRIX : 428.500€. Prix évolutif suivant les états d’avancement versés par le vendeur (travaux privatifs et communs). 

Travaux en cours – fin estimée : 1er semestre 2026
 

Pour plus d’information, contactez charlottechevalier@gmail.com ; T. 0484 21 34 89

Le 16 décembre 2025
0 commentaire

Signaler que cette annonce est inapproprié

Aidez-nous à améliorer le site d'habitat groupé, si cette annonce ou un des commentaires vous semble douteux signaler-le !
Signaler cette annonce comme inapproprié
Retour à votre recherche